À Canyelles Petites, nous vous présentons cette maison mitoyenne rénovée avec de belles vues sur la mer. Elle dispose d’une licence touristique, ce qui en fait une excellente opportunité tant pour un usage personnel que pour un investissement.
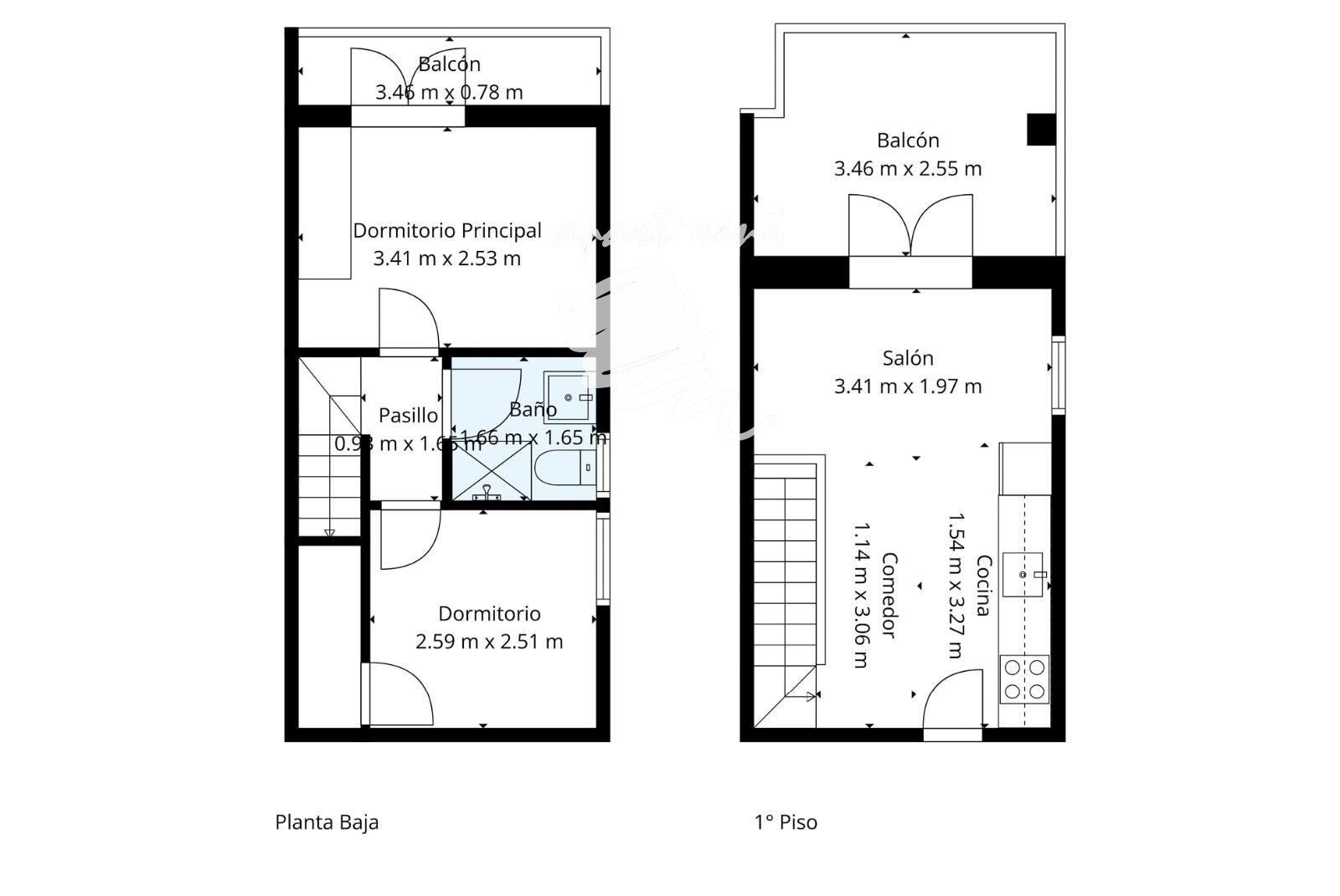
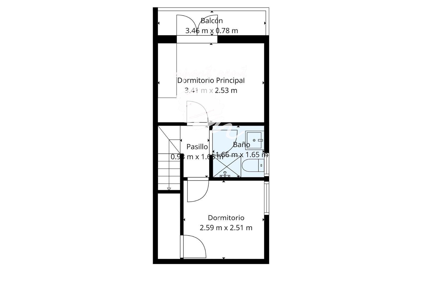
La maison est répartie sur deux niveaux et comprend deux chambres, une salle de bain complète, une cuisine équipée ainsi qu’un salon-salle à manger lumineux avec accès à une terrasse offrant d’agréables vues sur la mer. Elle est équipée de la climatisation réversible (chaud/froid).
L’un de ses atouts est la présence d’un studio indépendant au niveau inférieur, idéal pour accueillir des invités ou pour générer un revenu locatif supplémentaire. Elle dispose également d’une place de parking numérotée et d’un accès à une piscine communautaire.
Une très belle opportunité dans l’un des secteurs les plus recherchés de Roses.